Reutlingen:
Charmantes Wohnhaus mit Potenzial für eine große Familie oder zwei Generationen
Objekt-Nr.: WH104

Terrasse

Eingangsbereich

Küche

Wohnzimmer

Esszimmer

Badezimmer

Zimmer OG

Treppe ins OG

Flur OG

kleiner FLur OG

Duschbad DG

Zimmer mit Balkonzugang

Zimmer DG

Zimmer DG

Frontansicht

Ansicht links

Ansicht rechts

















Preis:
349.000 €
Wohnfläche ca.:
154,83 m²
Grundstück ca.:
214 m²
Zimmeranzahl:
9
Dieses charmante Wohnhaus in Reutlingen-Rommelsbach verbindet den Charakter eines historischen Gebäudes mit den Erweiterungen und Anpassungen der vergangenen Jahrzehnte.
Das ursprüngliche Gebäude wurde im Jahr 1917 errichtet und 1975 umfangreich an- und umgebaut. Im Jahre 1992 wurden weitere Sanierungen durchgeführt, wie u. a. das Dach inkl. den vorderen Gauben, z. T. die Fenster und z. T. die Elektrik. In den darauffolgenden Jahren wurde das Haus regelmäßig renoviert und gepflegt (z. B. Fassade), sodass es heute eine solide Basis für individuelles Wohnen bietet.
Die Immobilie eignet sich besonders gut für eine große Familie oder zwei Generationen unter einem Dach, da die Raumaufteilung ein sehr flexibles Nutzungskonzept ermöglicht.
Aufgrund der Grundstücksgröße verfügt das Haus über keinen klassischen Garten, bietet jedoch mehrere Balkone mit unterschiedlichen Ausrichtungen, sodass Sie zu verschiedenen Tageszeiten die Sonne genießen können.…
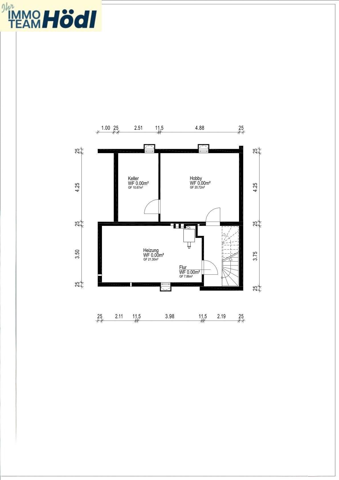
Wenn Sie ins Haus hereinkommen, gelangen Sie über einen Flur in die Waschküche / Heizraum, in den Hobbyraum, welchen Sie individuell nutzen können, wie auch zu einem weiteren Abstellraum. Vom Abstellraum gelangen Sie zur übergroßen Garage wie auch nach außen, wo sich ein weiterer Abstellraum befindet. Ebenfalls gelangen Sie vom Eingangsflur ins UG, in welchem es einen weiteren Kellerraum gibt.
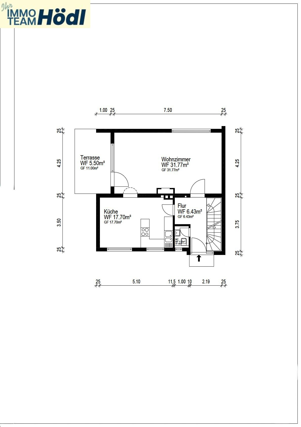
Über eine Treppe aus Holz gelangen Sie ins OG. Dort befinden sich das helle Wohn- und Esszimmer mit Zugang zum Westbalkon, die Küche inkl. Einbauküche mit Zugang zum Südbalkon, einem Badezimmer mit Badewanne, Dusche und einer Toilette und zwei Schlafzimmern. Die Balkonflächen sorgen für viel Licht und ermöglichen schöne Aufenthaltsbereiche im Freien.
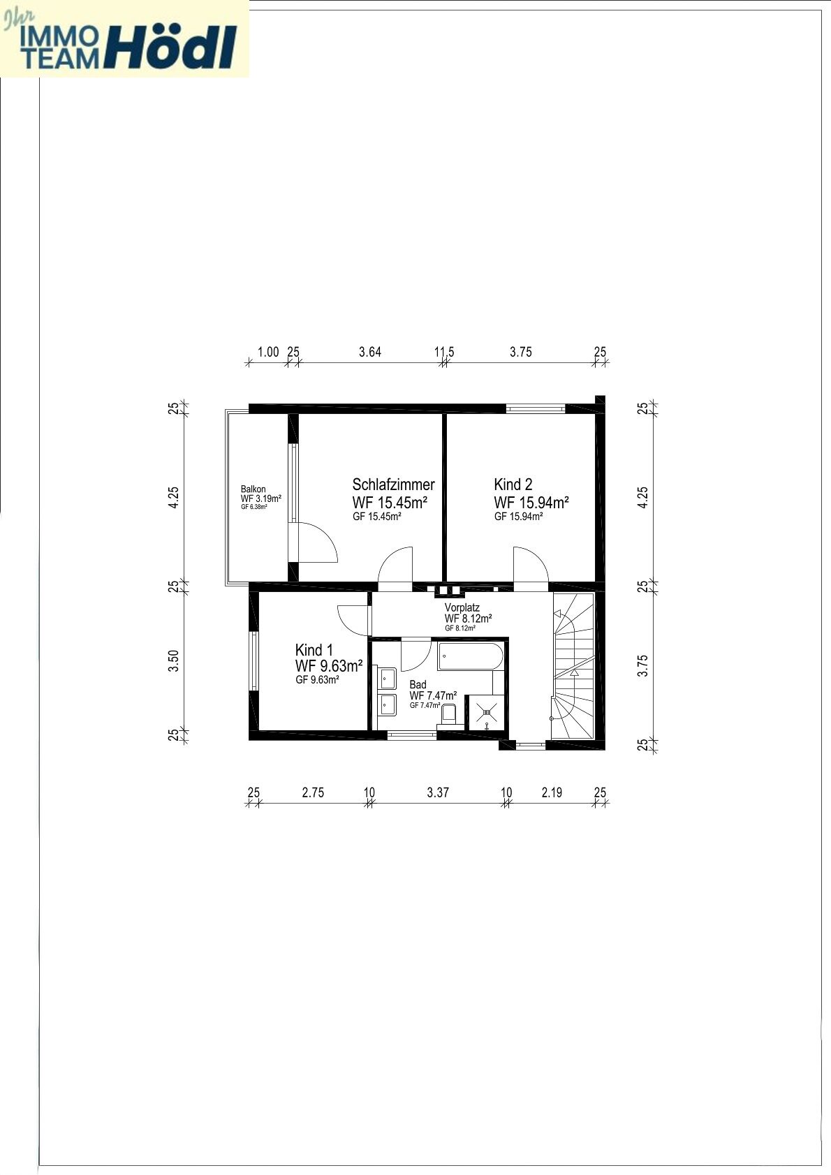
Über eine weitere Treppe aus Holz gelangen Sie ins Dachgeschoss. Hier befinden sich ein Duschbad, eine separate Toilette und vier weitere Schlafzimmer. Bei einem Zimmer haben Sie die Möglichkeit, dieses als Küche zu nutzen, da es vorher eine Küche war. 2 Schlafzimmer haben Zugang zum Ostbalkon. Damit eignet sich diese Etage hervorragend als eigene Wohneinheit für Kinder, Gäste oder eine zweite Generation.
Über eine Ausziehtreppe erreichen Sie zusätzlich den Dachboden, der weiteren Stauraum bietet.
Sie sehen, ein Haus mit vielen Möglichkeiten.
Haustyp: Einfamilienhaus
Etagenanzahl: 2
Provisionspflichtig: ja
Provision: 1,785% inkl. 19 % MwSt. vom Käufer
Nutzfläche ca.: 85,34 m²
Anzahl Schlafzimmer: 6
Anzahl Badezimmer: 2
Balkon: 3
Gäste-WC: ja
Dachboden: ja
Anzahl der Parkflächen: 1 x Garage
Letzte Modernisierung/ Sanierung: 1992
Baujahr: 1917
Zustand: gepflegt
Energieklasse: H
Heizung: Zentralheizung
Befeuerungsart: Gas
Energieausweistyp: Bedarfsausweis - gültig vom 02.04.2026 bis 02.04.2036
Energieeffizienz-Klasse: H
Baujahr laut Energieausweis: 1917
Bei Abschluss eines Kaufvertrages wird eine Vermittlung -/Nachweisprovision in Höhe von 1,785% inklusive 19% Mehrwertsteuer aus dem Kaufpreis vom Käufer fällig.
Die von uns gemachten Informationen beruhen auf Angaben des Vermieters. Für die Richtigkeit und Vollständigkeit der Angaben kann keine Gewähr bzw. Haftung übernommen werden. Ebenso übernehmen wir keine Haftung der Flächenangaben wie auch dem Baujahr.
Auf Wunsch können wir Ihnen einen Finanzierungsexperten empfehlen.
Das könnte Ihnen auch gefallen

Immo-Team Wolfgang Hödl
Herr Wolfgang Hödl
Rebengartenstr. 8
72766 Reutlingen
Telefon: +49 7121 420100
Mobil: +49 176 64319325
Fax: +49 7121 420200
DE-72768 Reutlingen
Baden-Württemberg
















































































